Home > 国産最高峰のセミフルコン特集(5)
シチュエーション別キャンピングカー選び 第23回
国産最高峰のセミフルコン特集(5)
ルーツシリーズ フィールドライフ
日産シビリアンをベース車にしたモデルで、同社のセミフルコンの主力モデル。
車長やレイアウトにより、ルーツオリジナル、ルーツトリップ、ルーツ6.6、ルーツEVOの4車種がラインアップされている。
更にルーツオリジナル、ルーツトリップとルーツEVOは全長により5.6と5.9を選択できる。
5.6は5.9に比べ、ルーツオリジナルではクローゼットが無く、サニタリールームも30Cm短くなり、ルーツトリップではベッド幅が20Cm、シャワールームとキッチンが10Cm短くなる。

標準は「ルーツオリジナル」で、全長は6mを切り比較的扱いやすい。

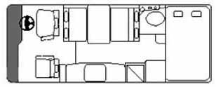
ルーツオリジナルのレイアウト
前部に対座ダイネット、その対面にギャレー、リアにハイマウントダブルベッドと跳ね上げ式の上段ベッド、ダイネットとベッドの間にサニタリールームを配置する。

ルーツオリジナルのインテリア
ルーツオリジナルは、2列目シートを前向きにセットすることもでき、全員前向きに着座してドライブもできるので、ファミリー用途にも適している。
他の3種のモデルは対座ダイネットではなく、ラウンジソファタイプのダイネットで、どちらかと言うとふたり旅に適している。

ルーツトリップのインテリア
まず、「ルーツトリップ」、そして全長が6.6mに拡張された「ルーツ6.6」、更に装備が充実した「ルーツEVO」が用意される。
なお、ルーツトリップとルーツ6.6にはゲスト用キャプテンシートが用意されており、3名が前向き乗車できる。
ダイネットのベッド展開をすれば、3名の就寝も可能。
ルーツトリップとルーツ6.6は基本的に同じ装備で、全長が異なる分、キッチンやサニタリールームが広くなっている。
また、リアベッドもトリップが1315mm幅であるのに対し、ルーツ6.6は1500mm(足元は1200mm)と広くなっている。
ルーツ6.6の特徴は、ベッドルーム上にあるエレベーティングルーフ(OP)。
これは、停泊時にルーフをポップアップしてより広い空間を作りだせるが、
それだけではなく、湿気がこもりがちなベッドルームの通気性を上げる意味でも有用である。

ルーツ6.6のポップアップルーフ
ルーツEVOは、ルーツトリップやルーツ6.6で装備されていたゲストキャプテンシートを廃し、その分ギャレーを広くしている。
これにより、コンロとシンクをセパレートにした、本格的なキッチンが可能になっている。
前向き着座は2名分しかないので、よりカップルに特化したレイアウトと言える。
ルーツEVOのレイアウト

ルーツEVOのダイネットとギャレー
![]()
ホーム|データベース|関連書籍|キャンピングカー用品|基礎知識
用語集|ニューモデル記事|シチュエーション別記事|過去の展示会レポート|お問い合わせ












