Home > マーモット キャンピングカーフジワラ
キャンピングカーフジワラ マーモット/マーモットW
マツダ ボンゴ 4,660(全長)x1,950(全幅)x2,770(全高)
エンジン 1,798ccガソリン
マーモット 乗車定員 6名 就寝定員 大人5名
マーモットW 乗車定員 6名 就寝定員 大人6名

マーモットのインテリア
キャンピングカーフジワラのオリジナルモデル、マーモットには「マーモット」と「マーモットW」がある。マーモットWはファミリー向けのレイアウトなのに対し、「マーモット」は主にカップル用に設計されたレイアウト。主な違いはレイアウトで、「マーモット」がラウンジソファのダイネットを持つのに対し、「マーモットW」は対座式のダイネットと常設2段ベッドを持つ。「マーモット」にトイレルームがあるのも特徴。「マーモット」でバンクベッドとフロアベッドを展開すれば、6名程度の就寝も可能。普段はシニアカップルで使用して、時にはファミリーでというような使い方もできるキャンピングカーである。一方、「マーモットW」は後部2段ベッドとバンクベッド、そしてダイネットを展開するフロアベッドがあるので、通常でも6名の乗車と就寝が可能となり、こちらはファミリーユースが主体となるだろう。
エクステリア
ボンゴにシェルを架装した典型的なキャブコンスタイルで、どこから見てもキャンピングカー然としているが、そのぶんスペース効率は良く、この車両サイズでも内部は余裕の広さを誇る。全長は4,660mmと5mを大きく下回るので、取り回しは全く問題ないだろう。乗用車に乗り慣れたユーザーは車幅が広くなったことと、全高が高くなったことを注意する必要はある。
マーモットとマーモットWでは、シェルの窓の位置や外部収納庫の大きさなど多少エクステリアが異なる。

マーモットのエクステリア


マーモットWのエクステリア
インテリア・レイアウト
エントランスはシェル前部にあり、マーモットでは中央にダイネット、後部にギャレーとマルチユースルームが配置される。ダイネットからギャレーやマルチユースルームへのアクセスは大変良く、効率の良いレイアウトとなっている。マーモットWでは後部に常設2段ベッドが設置され、ギャレーはダイネットの横に来る。両車とも内部のインテリアは明るい木の感触を生かしたもので、飽きの来ない、ぬくもり感のある室内となっている。

マーモットのインテリア 後部(左)と前部(右) 後部にはL字型ギャレーとトイレルームがある


マーモットWのインテリア 後部(左)と前部(右) 後部には常設2段ベッドが設置される

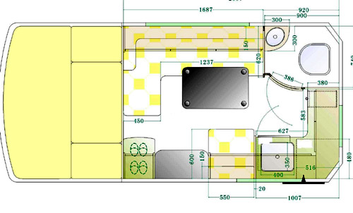
マーモットのレイアウト

マーモットWのレイアウト
ダイネット
マーモットではテーブルを囲んだL字型ラウンジソファとなる。これと対座する1人掛けシートがあるため、大人4名程度でも比較的ゆったり着座できる。車幅方向いっぱいに使ったダイネットは広々としている。マーモットWでは4人掛け対座シートが用意される。2列目シートは前方向着座にもできるので、走行時は6名乗車が可能となる。両車ともテーブルは比較的面積の広いもので、ファミリーで鍋を囲むというようなシチュエーションも可能だ。


マーモットのダイネット ラウンジソファであるが、対座シートも用意されており、ファミリーで鍋を囲むこともできる


マーモットWのダイネット 対座式で、走行時は前向きに着座できる
ベッド
マーモットではカップルで使用する場合、ダイネットはそのままにして、バンクベッドで就寝することができる。バンクベッドは1,800x1,400mmと庭用セミダブルベッド程度の大きさで、大人2名なら十分な広さである。バンクベッドは使用する時にスライドさせて引き出すようになっているため、未使用時は大きく開口されキャビンへの行き来時に邪魔にならない。マーモットのラウンジソファを展開することにより、1,800x1,750mmのフロアベッドも使用できるようになり、ここにも大人2名が楽に就寝できる。ダイネットはテーブルがワンタッチで押し下げられるようになっており、この上にベッドマットを乗せるだけでベッドメークが完了する。
マーモットWの場合は、バンクベッドに加え、後部2段ベッドもあるので、ダイネットで食事後、片付けることなく4名が就寝できる。後部2段ベッドは約1,800x670mm。2段ベッドのベッドボードは全て取り外しが可能で、取り外した場合は大きな収納庫として使用可能。またダイネットもベッドに展開できるので、ここにも2名就寝でき、合計6名就寝できることになる。フロアベッドの大きさは1,900x1,300mmである。


バンクベッドは引き出し式 使わないときはキャビンの頭上が大きく開ける



マーモットのフロアベッド(上左)と
マーモットWのフロアベッド(上右)
マーモットWの後部2段ベッド(左)
ギャレー
マーモットでは、立派なL字型ギャレーが装備される。ギャレーコンソール周りの収納庫が豊富で調理台も広く、本格的な料理することも十分に可能である。ギャレー上部には電子レンジの収納スペースも用意されている。マーマットWでは2段ベッドのスペースの影響でギャレースペースは小さくなっているが、シンクはマーモットと同様、大型のものが設置される。電子レンジは、ギャレー上部のオーバーヘッドコンソールに収納する。 両車ともシンクは十分な深さを持つ。シンクの深さは鍋でも洗えるというこだわりがあり、この深さは他に例を見ない。シャワーフォーセットは窓から外に引き出して使用することも可能。ペットの足を洗ったり、海水浴の後でシャワーを使ったりすることができるので大変便利。冷蔵庫はシンクの下に収納される。電子レンジや冷蔵庫までも標準装備となっており、充実したキッチン設備が最初から用意されている。

マーモットのギャレー(左)とマーモットWのギャレー(右)


マーモットのギャレー L字型の豪華なギャレーシステムは収納も多い。(左)
上部の収納庫には電子レンジを収納可能(右)
マルチユースルーム
マーモットにはトイレルームが標準装備される。便器は首振り式のカセットトイレで、トイレルームには、専用の手洗いシンクや鏡も用意され、豪華な作りとなっている。これらは全て標準装備。トイレルーム自体も十分な広さがある。
収納
両車ともダイネット上部やギャレー上部にはオーバーヘッド収納が装備されている他、ギャレーコンソールにも大小の収納や引き出しが装備されている。また、エントランス左側には靴入れ兼収納庫が備え付けられており、室内には十分な収納スペースが用意されている。マーモットWでは2段ベッドのベッドボードをはずすことにより、大きな収納スペースが出現する。車両左側後部のドアは、この収納スペースにアクセスするためのもの。上部だけベッドとして使うことも可能で、この場合は下段が収納庫として使える。マーモットにも同じ位置にドアがあるが、こちらは清水タンクのメンテナンス用。ここからタンクの排水や清水の残量確認が出来る。

マーモットWの外部収納庫扉(車両左後部)を開けたところ(左)
ベッドボードを取り外すと、大きなものの収納も可能
オプション
マーモットはサブバッテリー、走行充電、外部100V入力などの電装系、FFヒーター、冷蔵庫、電子レンジ、トイレシステム(マーモットのみ)など、ほとんどの必要装備が標準装備となっているため、オプションを付けていくと思ったより高額になってしまったということはないだろう。電気製品を多く使うユーザーは発電機を搭載すると良い。オプションのホンダEu 16 i発電機を搭載する場合は、アルミ製オリジナルボックス(オプション)に収納し、サイクルキャリアに取り付けることになる。
まとめ
カップルで使用し、たまには4名程度の使用ならマーモット、4名〜6名のファミリー使用が中心ならマーモットWが適している。マーモット/マーモットWはボンゴをベースとした標準的なキャブコンであるが、充実した標準装備品と、使いやすいレイアウトを備えており、上質でお買い得なパッケージといえる。
|
ビルダーからの一言 |
装備一覧
| 車名 | マーモット | マーモットW | 備考 |
| ベース車 | ボンゴ | ボンゴ | |
| シェル架装 | ● | ● | |
| ルーフ架装 | - | - | |
| ポップアップルーフ | - | - | |
| 窓張出し | - | - | |
| FFヒーター | ● | ● | |
| サイドオーニング | ▲ | ▲ | |
| サブバッテリー | ● | ● | 合計190A |
| 走行充電システム | ● | ● | |
| 外部100Vバッテリーチャージャー | ● | ● | |
| バッテリー増設 | - | - | |
| インバーター | ● | ● | 2KW |
| 外部AC入力 | ● | ● | |
| ルーフベンチレーター | ● | ● | |
| ガスコンロ | ● | ● | |
| シンク | ● | ● | |
| レンジフード | - | - | |
| 冷蔵庫 | ● | ● | |
| 給水タンク | ● | ● | 40リッター |
| 排水タンク | ● | ● | 40リッター |
| 電子レンジ | ● | ● | |
| ハイマウントベッド | - | - | |
| 二段ベッド | - | ● | |
| ルーフベッド | - | - | |
| バンクベッド | ● | ● | |
| オーバーヘッド収納庫 | ● | ● | |
| クローゼット | - | - | |
| 多用途ルーム | ● | - | |
| シューズボックス | ● | ● | |
| 床下収納 | - | - | |
| シャワー設備 | - | - | |
| トイレ | ● | - | |
| カーテン | ● | ● | |
| ソーラーシステム | ▲ | ▲ | |
| サンルーフ | - | - | |
| 追加エアコン | ▲ | ▲ | |
| 温水装置 | - | - | |
| 発電機 | ▲ | ▲ | |
| 断熱加工 | ● | ● | |
| アクリル2重窓 | - | - | |
| 床暖房 | - | - | |
| リアラダー | ● | ● | |
| バックアイカメラ | ● | ● | |
| 価格(税込:円) | \4,600,000 | \4,200,000 | 2WDガソリン |
2011年1月現在
ホーム|新着情報|キャンピングカーリスト|メーカー/販売店|関連書籍|基礎知識
道の駅|イベントスケジュール|ユーザーレポート|お問い合わせ|掲示板|サイトマップ












